大田原市北野上No.177
中古物件 商談中
●スーパーリオンドール 車で9分(4.7Km)●セブンイレブン 車で7分(3.3㎞)●那須黒羽ゴルフ倶楽部 車で3分(1㎞)
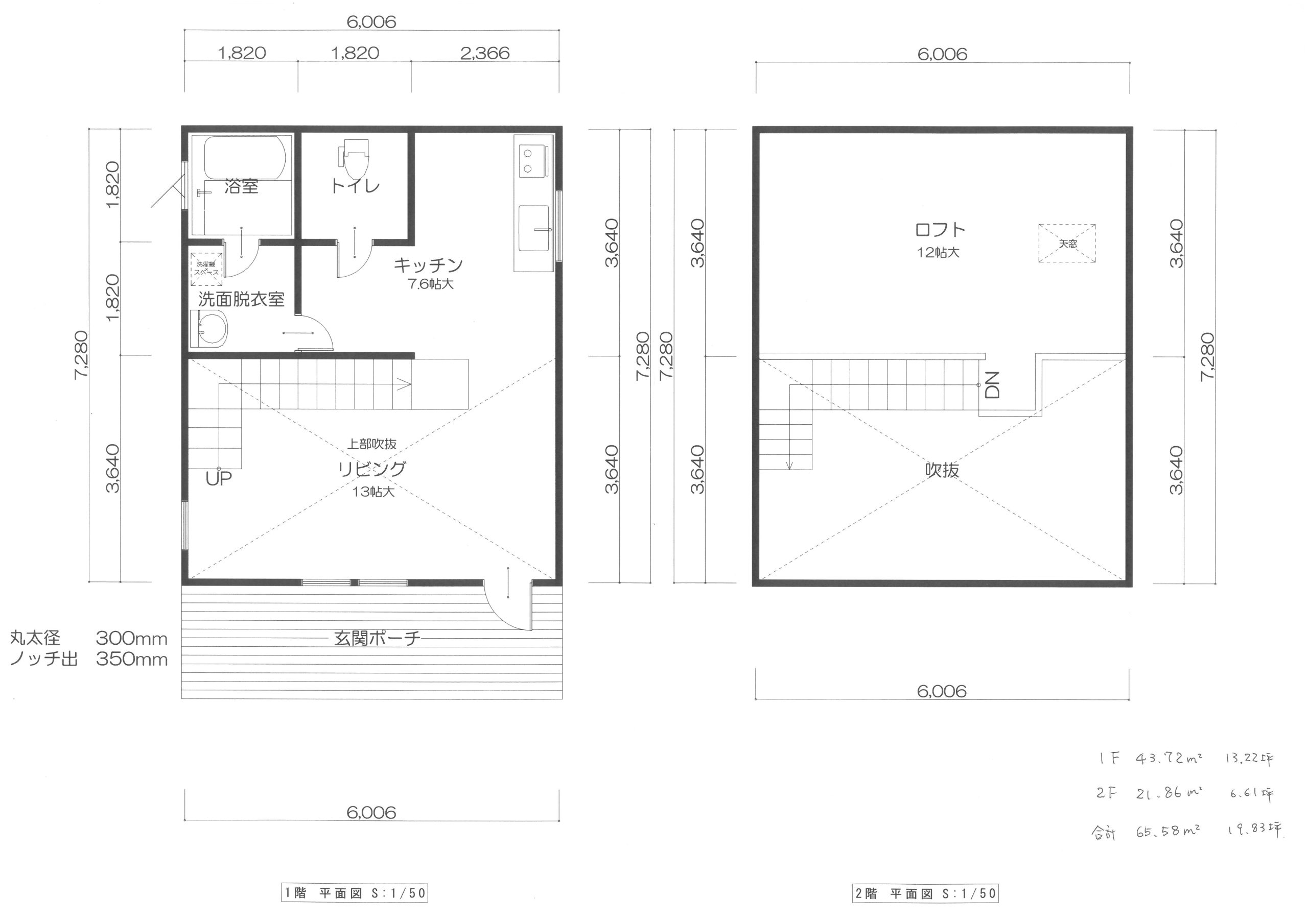
| 所在地 | 大田原市北野上 | 地目 | 山林 |
|---|---|---|---|
| 土地面積 | 148 m2(44.77 坪) | 接道状況 | 私道 |
| 建築面積 | 65.58 m2(19.83 坪)建築面積1F:43.72 m2 建築面積2F:21.86 m2 | 幅員 | 6m |
| 構造 | 6m | 都市計画 | 都市計画区域外 |
| 新築年月日 | 平成3年 | 用途地域 | 無指定 |
| 間取り | 1LDK | 建ぺい率 (容積率) |
60%(200%) |
| 水道 | 公営水道 | 法令制限 | |
| ガス | プロパンガス | 取引形態 | 仲介 |
| 電気 | 東京電力 | 引渡条件 | 現状有姿 |
| 排水 | 合併浄化槽 宅内処理 | 温泉 | 無 |
| 備考 | 契約不適合免責の特約条件付。 | ||







